
I’m not quite ready to welcome you into my home yet. We still have a little ways to go as my entryway is still pretty empty but soon enough, I’ll invite you all in to take a peek. For now, let’s continue with the design process as it happened with this particular space.
Entryway Design Process

Site Analysis
As I do when working with all my clients, I took my tools of the trade (tape measure, iPhone for taking pictures, paint decks, laser measure, pencil and paper) to the site and measured every tiny detail. I also took pictures of different angles of the room, detailed shots of the millwork, and noted the placement of fixtures and outlets. Then, it was back to the office armed with all of the pertinent information I needed to start planning out the function of the space.
Many of these details may seem inconsequential but it’s incredibly important for designers to know not only the dimensions of the room itself but also details regarding how the components of mechanical, electrical, plumbing, etc systems function. Once I finish a measure, I know everything from how high the ceilings are to which light switches control which fixtures as it enables me to think through the functionality of the space in more depth.
Schematic Design
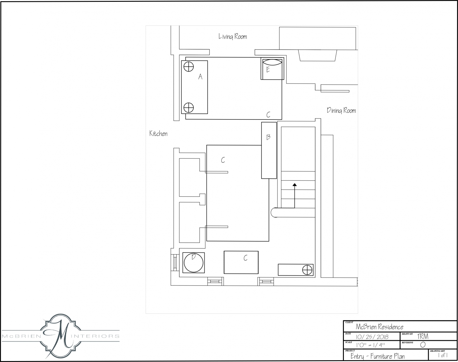
For me, how my clients plan to utilize a room is just as important as how they envision it so space planning is the foundation of my design. For our entryway, we know that very few people will come through the front door. It functions more as a passageway to the living room, kitchen and dining room. With that being the case, we want to make sure all of the furniture is against the walls. It’s a long but narrow space so we need to keep the flow between the rooms open and easy. And in this case, there aren’t too many places to put furniture.
The antique chest is an easy (and I must say perfect) fit. Also, it is important to us to cover up the eye-sore of a radiator that is on the right hand side as much as we can so I placed a narrow console table there that we can put stools or baskets underneath. Some rugs to add some warmth underfoot, a decorative object in the peculiar corner by the front door and a hall chair in the other unusual corner leading into the living room are about all that is needed in terms of the furniture plan.
Design Development
Now for creating the aesthetics of the space or the design development. First, I started by asking my husband to pull inspiration images and I would do the same so we could talk through our likes and dislikes. Even though, we have lived together for many years, we have incredibly different styles. It’s always been a challenge to meld those visions; however, for the first time in our marriage we actually chose the SAME inspiration image. And then there were other images we pulled separately which seemed to combine our tastes and give me some runway to go on.
Now if you follow me at all on Instagram, you know I love blue and white as well as chinoiserie. The color combination is classic and can read modern or traditional depending on how they are used together. And I’ve always had an affinity for Asia so the chinoiserie inspiration is ingrained. For our home, I looked to more traditional blue and white porcelain as well as our collective inspiration images for inspiration. We already own a couple pieces of furniture and accessories that I will be incorporating into the space but there are others I need to source.

With that said, this is where my design board ended up. Benjamin Moore’s Simply White on the walls create an unmarred canvas for all of the unique pieces we already own and those that are yet to be found. The antique chest (A) with the most amazing tassel (B) from Trellis Home will be topped with a vintage art deco mirror (C) and buffet lamps (D) soon to be clad with custom shades. A Louis XVI style side chair (E) reupholstered in a modern fabric (F). A blue and white ginger jar on a pedestal (G) to fill in the odd front corner. A couple of traditional 100% wool woven rugs (H) that are easily cleanable but will wear well. A modern semi-flushmount fixture (I); I’ve always loved the look of a lantern in the entryway but we don’t have the height for it so this is a great compromise. And a parsons-style grasscloth-covered console (J) adds some texture and that rich navy color I love so much.
Benjamin Moore’s Glass Slipper is the paint color we chose for the walls in our living room. And the abstract art (K), Tibetan style console (L) and ficus tree (M) are pieces that I envision on the back wall of the living room. I’ve included them on this design board as it’s important to keep them in mind as the rest of the entry comes together. These are actually the first pieces one sees from the entry door. In the end, the overall feel is welcoming and classic but with a little modern twist coming from the fabrics, custom shades and art. Of course, a design board is just a jumping off point as much of a room’s elements come together in the next phase…sourcing.
****Note: Typically, in my business, the design development and sourcing phases are part of the same process but for the purposes of separating out these posts, I’ve turned them into two separate steps. With a design game plan ready and a shopping list in hand, I’m ready to hunt for the perfect pieces.
Check back soon to follow along as I source from trade-only vendors as well as local antique dealers, restorers, framers, and even an artist I found on Instagram to find all of the components to turn my little entry into one of my favorite rooms in the house.