Dazzling Darien Contemporary Farmhouse You Can Customize Seeks $3M

In storied Darien, where traditional colonials line the streets, there comes an opportunity to be a part of something fresh and different. Fletcher Custom Homes, architect Christopher Pagliaro, and Wesley Stout Associates have teamed up to create a collection of four homes in a private enclave of the peaceful Fairfield County town, dubbed Walker’s Hill. The other three listings are now in contract, so this is the last chance to get in on the ground floor and own a new construction that you can customize, as it will not be complete until 2021. Asking $2.995 million, the contemporary farmhouse offers endless possibilities and jaw-dropping style.

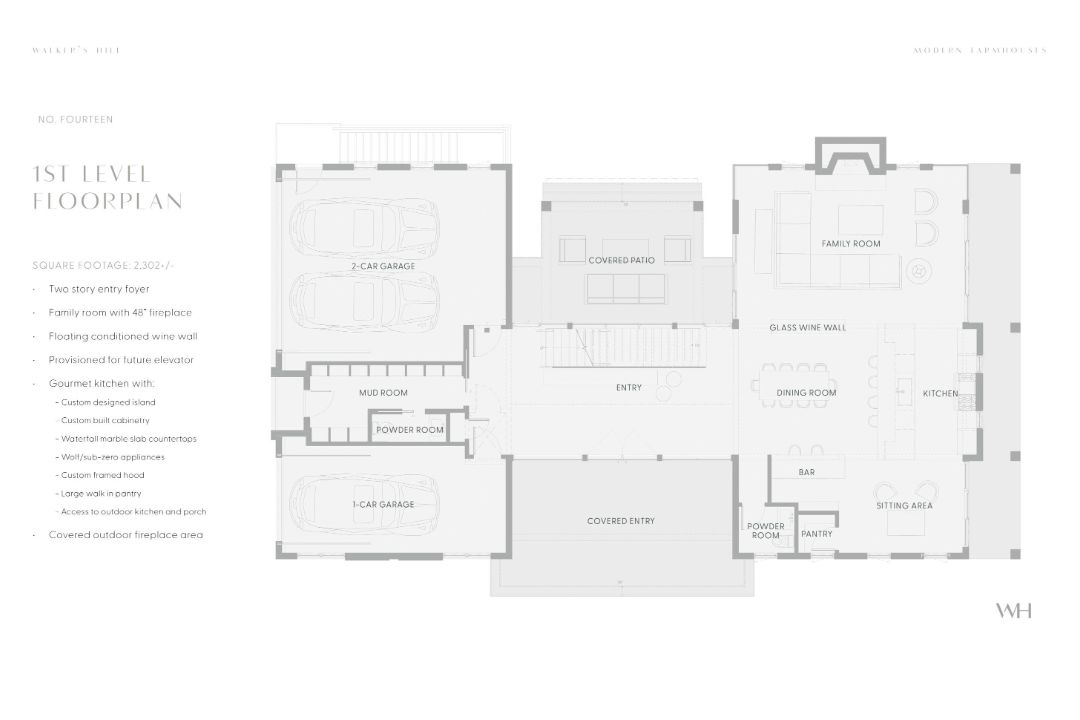
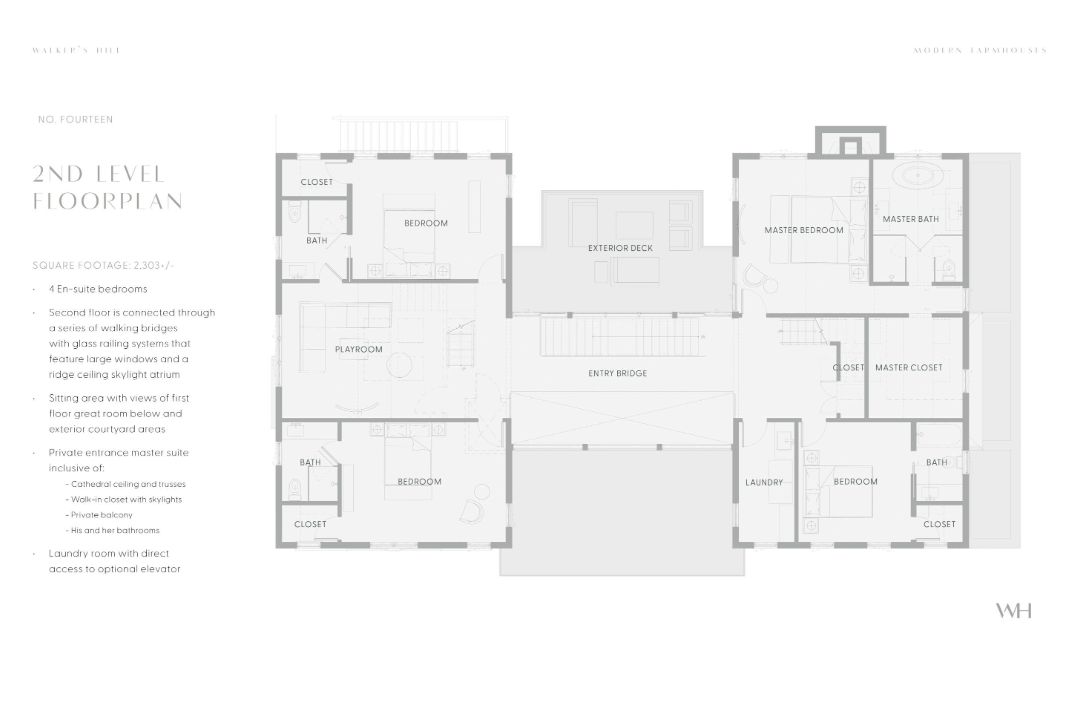
The home will eventually span 4,500 square feet and count 5 bedrooms and 4 full bathrooms within its floor plan. While to some the unfinished status might seem at first like an inconvenience, the creative potential it allows for is unparalleled in this area. The new owner, whoever they might be, gets to step into the building process and make the home their own. Included in the floor plan are suggestions for where such creativity might lead—a future gym, wine cellar, and a golf simulator all have allotted space on the lower level. Mere suggestions, they provide a luxurious vision for the lifestyle the owners may have here.

With the help of the elite design team working on the project, this home on just over an acre will be one-of-a-kind. Ariana O’Malley of Houlihan Lawrence has the listing right near town center.